
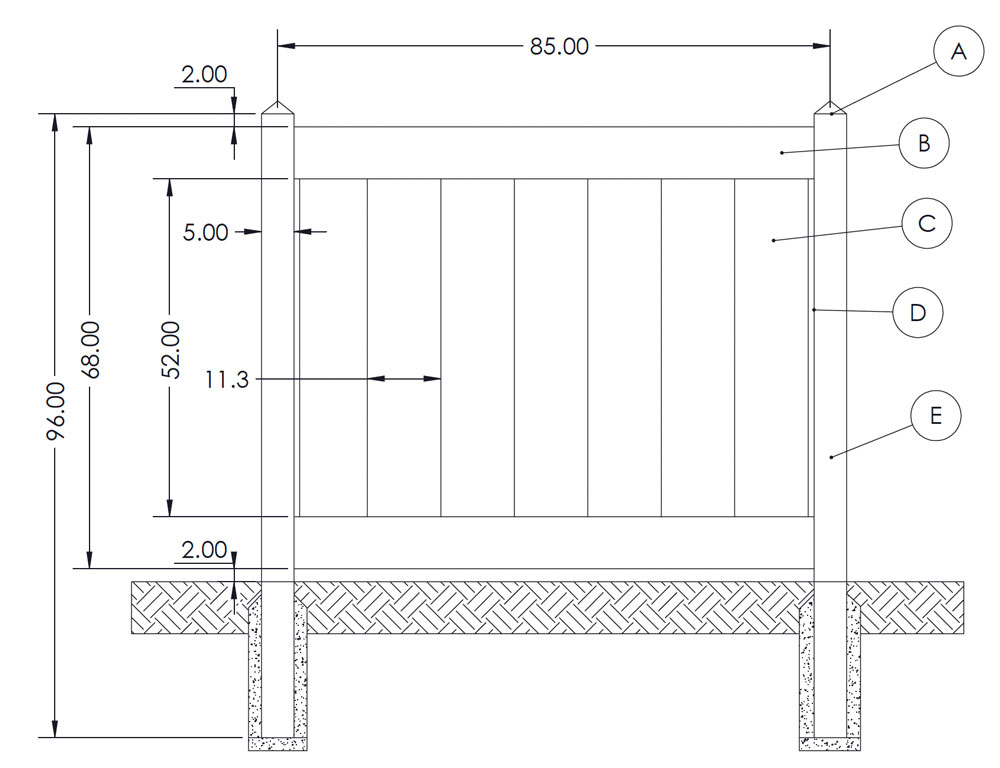
6' × 8' Gorilla Privacy
1 ¾" × 5 ½"
Gorilla Pocket Rail
⅞" × 11.3"
T&G
5" × 5"
Post
#HVPp-04
| Key | QTY | Item Key | Description |
|---|---|---|---|
| A | 2 | C55PRYA | 5" × 5" Pyramid Cap |
| B | 2 | F37C | 1 ¾" × 5 ½" × 94" Gorilla Pocket Rail |
| C | 8 | F61S | ⅞" × 11.3" × 62 ¼" Gorilla T&G |
| D | 2 | F83U | ⅞" × 59" Trim Channel |
| E | 2 | F10E | 5" × 5" × 108" Co-Ex Utility Post |
| F | 1 | G3RFM147 | 1 ¾" × 94" Steel Insert |
Please refer to the appropriate guideline documents available on this app for proper installation.

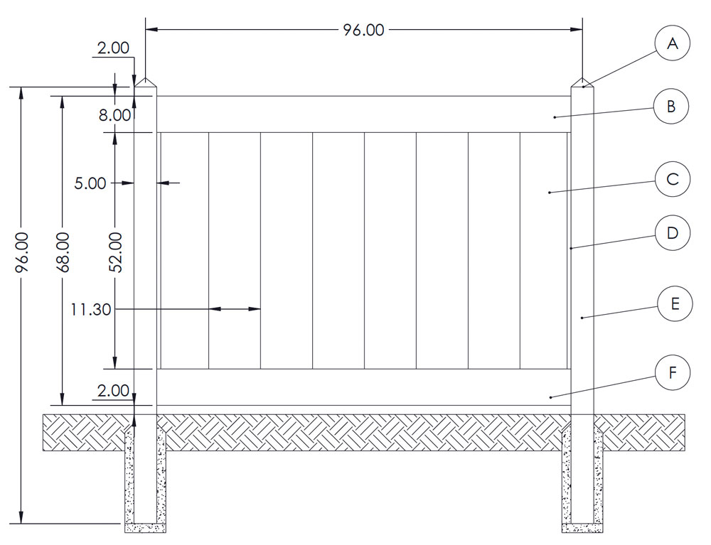
6' × 8' Gorilla Privacy
1 ½" × 5 ½"
Gorilla Pocket Rail
⅞" × 11.3"
T&G
5" × 5"
Post
#HVPp-05
| Key | QTY | Item Key | Description |
|---|---|---|---|
| A | 2 | C55PRYA | 5" × 5" Pyramid Cap |
| B | 2 | F32G | 1 ½" × 5 ½" × 94" Gorilla Pocket Rail |
| C | 8 | F61S | ⅞" × 11.3" × 62 ¼" Gorilla T&G |
| D | 2 | F83U | ⅞" × 59" Trim Channel |
| E | 2 | F10E | 5" × 5" × 96" Co-Ex Utility Post |
Please refer to the appropriate guideline documents available on this app for proper installation.

6' × 8' Gorilla Privacy (70")
1 ¾" × 5 ½"
Gorilla Pocket Rail
⅞" × 11.3"
Gorilla T&G
5" × 5"
Post
#HVPp-10
| Key | QTY | Item Key | Description |
|---|---|---|---|
| A | 2 | C55PRYA | 5" × 5" Pyramid Cap |
| B | 2 | F37C | 1 ¾" × 5 ½" × 94" Gorilla Pocket Rail |
| C | 8 | F61S | ⅞" × 11.3" × 62 ¼" Gorilla T&G |
| D | 2 | F83U | ⅞" × 59" Trim Channel |
| E | 2 | F10E | 5" × 5" × 108" Co-Ex Utility Post |
| F | 1 | G3RFM147 | 1 ¾" × 93" Steel Insert |
Please refer to the appropriate guideline documents available on this app for proper installation.

6' × 7' Gorilla Privacy (68")
1 ½" × 8"
Gorilla Pocket Rail
⅞" × 11.3"
T&G
5" × 5"
Post
#HVPp-11
| Key | QTY | Item Key | Description |
|---|---|---|---|
| A | 2 | C55PRYA | 5" × 5" Pyramid Cap |
| B | 2 | F3P1 | 1 ½" × 8" × 83" Gorilla Pocket Rail |
| C | 7 | F61S | ⅞" × 11.3" × 55 ¼" Gorilla T&G |
| D | 2 | F83U | ⅞" × 52" Trim Channel |
| E | 2 | F10E | 5" × 5" × 96" Co-Ex Utility Post |
Please refer to the appropriate guideline documents available on this app for proper installation.

6' × 8' Gorilla Privacy (68")
1 ½" × 5 ½"
Gorilla Pocket Rail
⅞" × 11.3"
Gorilla T&G
5" × 5"
Post
#HVPp-14
| Key | QTY | Item Key | Description |
|---|---|---|---|
| A | 2 | C55PRYA | 5" × 5" Pyramid Cap |
| B | 2 | F32G | 1 ½" × 5 ½" × 94" Gorilla Pocket Rail |
| C | 8 | F61S | ⅞" × 11.3" × 62 ¼" Gorilla T&G |
| D | 2 | F83U | ⅞" × 58 ⅞" Trim Channel |
| E | 2 | F10E | 5" × 5" × 96" Co-Ex Utility Post |
| F | 1 | G3RFM121 | 1 ½" × 93" Steel Insert |
Please refer to the appropriate guideline documents available on this app for proper installation.

6' × 6' gorilla Privacy (70")
1 ¾" × 5 ½"
Gorilla Pocket Rail
⅞" × 11.3"
T&G
5" × 5"
Post
#HVPp-20
| Key | QTY | Item Key | Description |
|---|---|---|---|
| A | 2 | C55PRYA | 5" × 5" Pyramid Cap |
| B | 2 | F37C | 1 ¾" × 5 ½" × 71 ½" Gorilla Pocket Rail |
| C | 6 | F61S | ⅞" × 11.3" × 62 ¼" Gorilla T&G |
| D | 2 | F83U | ⅞" × 59" Trim Channel |
| E | 2 | F10E | 5" × 5" × 96" Co-Ex Utility Post |
Please refer to the appropriate guideline documents available on this app for proper installation.

6' × 6' gorilla Privacy (68")
1 ¾" × 5 ½"
Gorilla Pocket Rail
⅞" × 11.3"
T&G
5" × 5"
Post
#HVPp-21
| Key | QTY | Item Key | Description |
|---|---|---|---|
| A | 2 | C55PRYA | 5" × 5" Pyramid Cap |
| B | 2 | F37C | 1 ¾" × 5 ½" × 71 ½" Gorilla Pocket Rail |
| C | 6 | F61S | ⅞" × 11.3" × 60 ¼" Gorilla T&G |
| D | 2 | F83U | ⅞" × 57" Trim Channel |
| E | 2 | F10E | 5" × 5" × 96" Co-Ex Utility Post |
Please refer to the appropriate guideline documents available on this app for proper installation.

6' × 8' gorilla Privacy (68")
1 ¾" × 5 ½"
Gorilla Pocket Rail
⅞" × 11.3"
T&G
5" × 5"
Post
#HVPp-22
| Key | QTY | Item Key | Description |
|---|---|---|---|
| A | 2 | C55PRYA | 5" × 5" Pyramid Cap |
| B | 2 | F37C | 1 ¾" × 5 ½" × 94" Gorilla Pocket Rail |
| C | 8 | F61S | ⅞" × 11.3" × 60 ¼" Gorilla T&G |
| D | 2 | F83U | ⅞" × 57" Trim Channel |
| E | 2 | F10E | 5" × 5" × 96" Co-Ex Utility Post |
Please refer to the appropriate guideline documents available on this app for proper installation.

6' × 8' Gorilla Privacy (68")
1 ½" × 8"
Gorilla Pocket Rail
⅞" × 11.3"
T&G
5" × 5"
Post
#HVPp-24
| Key | QTY | Item Key | Description |
|---|---|---|---|
| A | 2 | C55PRYA | 5" × 5" Pyramid Cap |
| B | 2 | F3P1 | 1 ½" × 8" × 94" Gorilla Pocket Rail |
| C | 8 | F61S | ⅞" × 11.3" × 55 ¼" Gorilla T&G |
| D | 2 | F83U | ⅞" × 52" Trim Channel |
| E | 2 | F10E | 5" × 5" × 96" Co-Ex Utility Post |
| F | 1 | G3RFH121 | 1 ½" × 93" Steel Insert |
Please refer to the appropriate guideline documents available on this app for proper installation.

6' × 8' Gorilla Privacy (68")
1 ½" × 5 ½"
Gorilla Pocket Rail
⁷⁄₆" × 11.3"
T&G
5" × 5"
Post
#HVPp-31
| Key | QTY | Item Key | Description |
|---|---|---|---|
| A | 2 | C55PRYA | 5" × 5" Pyramid Cap |
| B | 2 | F32G | 1 ½" × 5 ½" × 94" Gorilla Pocket Rail |
| C | 8 | F61S | ⅞" × 11.3" × 60 ¼" Gorilla T&G |
| D | 2 | F83U | ⅞" × 57" Trim Channel |
| E | 2 | F10E | 5" × 5" × 96" Co-Ex Utility Post |
| F | 1 | G3RFH121 | 1 ½" × 93" Steel Insert |
Please refer to the appropriate guideline documents available on this app for proper installation.

6' × 6' Gorilla Privacy (68")
1 ½" × 5 ½"
Gorilla Pocket Rail
⁷⁄₆" × 11.3"
T&G
5" × 5"
Post
#HVPp-56
| Key | QTY | Item Key | Description |
|---|---|---|---|
| A | 2 | C55PRYA | 5" × 5" Pyramid Cap |
| B | 2 | F32G | 1 ½" × 5 ½" × 71 ½" Gorilla Pocket Rail |
| C | 6 | F61S | ⅞" × 11.3" × 62 ¼" Gorilla T&G |
| D | 2 | F83U | ⅞" × 58 ⅞" Trim Channel |
| E | 2 | F10E | 5" × 5" × 96" Co-Ex Utility Post |
| F | 1 | G3RFH121 | 1 ½" × 70" Steel Insert |
Please refer to the appropriate guideline documents available on this app for proper installation.