
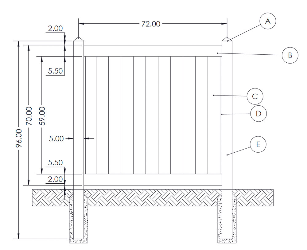
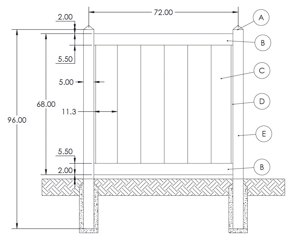
6' × 8' Gorilla Privacy (70")
1 ½" × 5 ½"
Gorilla Pocket Rail
⅞" × 11.3"
T&G
5" × 5"
Post
#HVPp-05
| Key | QTY | Item Key | Description |
|---|---|---|---|
| A | 2 | C55PRYA | 5" × 5" Pyramid Cap |
| B | 2 | F32G | 1 ½" × 5 ½" × 94" Gorilla Pocket Rail |
| C | 8 | F61S | ⅞" × 11.3" × 62 ¼" Gorilla T&G |
| D | 2 | F83U | ⅞" × 59" Trim Channel |
| E | 2 | F10E | 5" × 5" × 96" Co-Ex Utility Post |
Please refer to the appropriate guideline documents available on this app for proper installation.

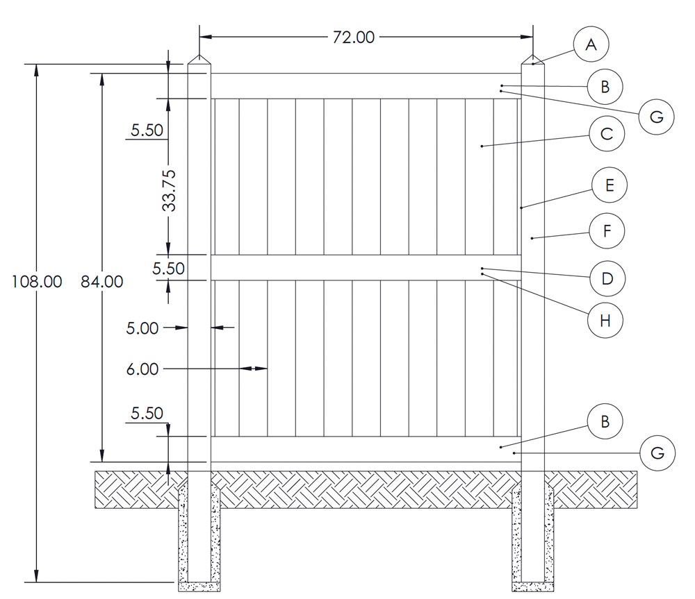
7' × 6' Gorilla Privacy w/mid-rail (84")
1 ½" × 5 ½"
Gorilla Pocket Rail
⅞" × 6"
T&G
1 ¾" × 5 ½"
Nexus Mid-Rail
5" × 5"
Post
#HVPP-12
| Key | QTY | Item Key | Description |
|---|---|---|---|
| A | 2 | C55PRYA | 5" × 5" Pyramid Cap |
| B | 2 | F32G | 1 ½" × 5 ½" × 71 ½" Gorilla Pocket Rail |
| C | 22 | F54G | ⅞" × 6" × 33 ¾" Gorilla T&G |
| D | 1 | F3PM | 1 ¾" × 5 ½" Nexus Mid-Rail |
| E | 4 | F83U | ⅞" × 33 ¾" Trim Channel |
| F | 2 | F10E | ⁷⁄₅" × 5" × 108" Co-Ex Utility Post |
| G | 2 | G3RFH121 | 1 ½" × 71 ½" Steel Insert |
| H | 1 | G3RFM147 | 1 ¾" × 71 ½" Steel Insert |
Please refer to the appropriate guideline documents available on this app for proper installation.

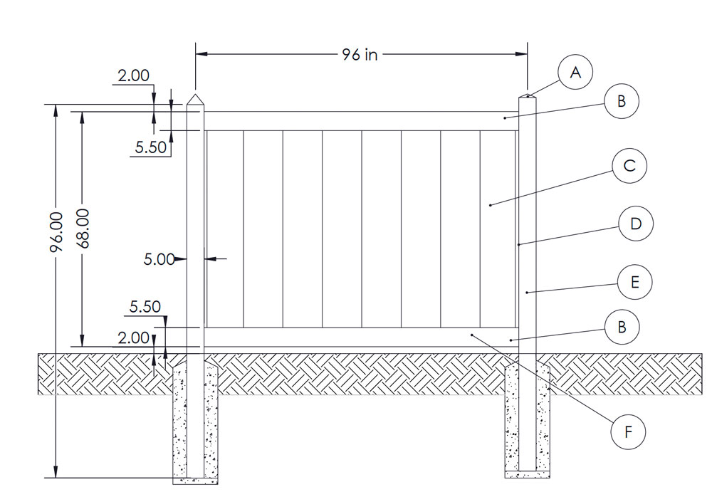
6' × 8' Gorilla Privacy (68")
1 ½" × 5 ½"
Gorilla Pocket Rail
⅞" × 11.3"
Gorilla T&G
5" × 5"
Post
#HVPp-14
| Key | QTY | Item Key | Description |
|---|---|---|---|
| A | 2 | C55PRYA | 5" × 5" Pyramid Cap |
| B | 2 | F32G | 1 ½" × 5 ½" × 94" Gorilla Pocket Rail |
| C | 8 | F61S | ⅞" × 11.3" × 62 ¼" Gorilla T&G |
| D | 2 | F83U | ⅞" × 58 ⅞" Trim Channel |
| E | 2 | F10E | 5" × 5" × 96" Co-Ex Utility Post |
| F | 1 | G3RFM121 | 1 ½" × 93" Steel Insert |
Please refer to the appropriate guideline documents available on this app for proper installation.

6' × 6' gorilla Privacy (70")
1 ½" × 5 ½"
Gorilla Pocket Rail
⅞" × 6"
T&G
5" × 5"
Post
#HVPp-18
| Key | QTY | Item Key | Description |
|---|---|---|---|
| A | 2 | C55PRYA | 5" × 5" Pyramid Cap |
| B | 2 | F32G | 1 ½" × 5 ½" × 71 ½" Gorilla Pocket Rail |
| C | 11 | F54G | ⅞" × 6" × 62 ¼" Gorilla T&G |
| D | 2 | F83U | ⅞" × 59" Trim Channel |
| E | 2 | F10E | 5" × 5" × 96" Co-Ex Utility Post |
Please refer to the appropriate guideline documents available on this app for proper installation.

6' × 8' Gorilla Privacy (70")
1 ½" × 5 ½"
Gorilla Pocket Rail
⅞" × 6"
T&G
5" × 5"
Post
#HVPp-25
| Key | QTY | Item Key | Description |
|---|---|---|---|
| A | 2 | C55PRYA | 5" × 5" Pyramid Cap |
| B | 2 | F32G | 1 ½" × 5 ½" × 94" Gorilla Pocket Rail |
| C | 15 | F54G | ⅞" × 6" × 62 ¼" Gorilla T&G |
| D | 2 | F83U | ⅞" × 59" Trim Channel |
| E | 2 | F10E | 5" × 5" × 108" Co-Ex Utility Post |
| F | 1 | G3RFH148 | 1 ½" × 93" Steel Insert |
Please refer to the appropriate guideline documents available on this app for proper installation.

6' × 8' Gorilla Privacy (70")
1 ½" × 5 ½"
Gorilla Pocket Rail
⁷⁄₆" × 6"
T&G
5" × 5"
Post
#HVPp-26
| Key | QTY | Item Key | Description |
|---|---|---|---|
| A | 2 | C55PRYA | 5" × 5" Pyramid Cap |
| B | 2 | F32G | 1 ½" × 5 ½" × 94" Gorilla Pocket Rail |
| C | 15 | F54G | ⅞" × 6" × 62 ¼" Gorilla T&G |
| D | 2 | F83U | ⅞" × 59" Trim Channel |
| E | 2 | F10E | 5" × 5" × 96" Co-Ex Utility Post |
| F | 1 | G3RFH148 | 1 ½" × 93" Steel Insert |
Please refer to the appropriate guideline documents available on this app for proper installation.

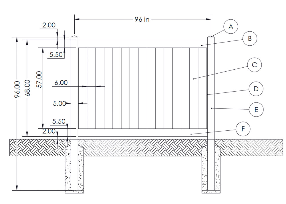
6' × 8' Gorilla Privacy (68")
1 ½" × 5 ½"
Sun Pocket Rail
⁷⁄₆" × 6"
T&G
5" × 5"
Post
#HVPp-30
| Key | QTY | Item Key | Description |
|---|---|---|---|
| A | 2 | C55PRYA | 5" × 5" Pyramid Cap |
| B | 2 | F32G | 1 ½" × 5 ½" × 94" Gorilla Pocket Rail |
| C | 15 | F54G | ⅞" × 6" × 60 ¼" Gorilla T&G |
| D | 2 | F83U | ⅞" × 57" Trim Channel |
| E | 2 | F10E | 5" × 5" × 96" Co-Ex Utility Post |
| F | 1 | G3RFH121 | 1 ½" × 93" Steel Insert |
Please refer to the appropriate guideline documents available on this app for proper installation.

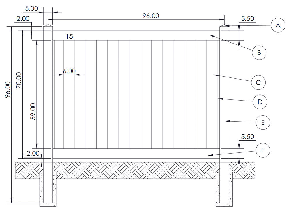
6' × 8' Gorilla Privacy (68")
1 ½" × 5 ½"
Gorilla Pocket Rail
⁷⁄₆" × 11.3"
T&G
5" × 5"
Post
#HVPp-31
| Key | QTY | Item Key | Description |
|---|---|---|---|
| A | 2 | C55PRYA | 5" × 5" Pyramid Cap |
| B | 2 | F32G | 1 ½" × 5 ½" × 94" Gorilla Pocket Rail |
| C | 8 | F61S | ⅞" × 11.3" × 60 ¼" Gorilla T&G |
| D | 2 | F83U | ⅞" × 57" Trim Channel |
| E | 2 | F10E | 5" × 5" × 96" Co-Ex Utility Post |
| F | 1 | G3RFH121 | 1 ½" × 93" Steel Insert |
Please refer to the appropriate guideline documents available on this app for proper installation.

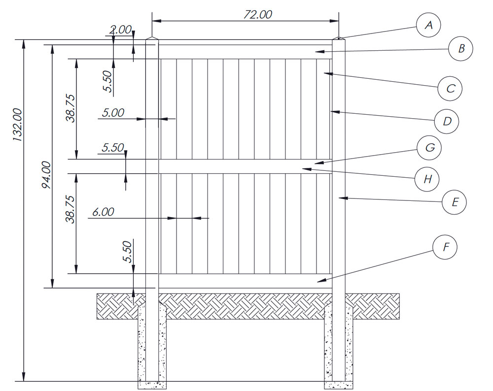
8' × 6' Gorilla Privacy w/mid-rail (94")
1 ½" × 5 ½"
Gorilla Pocket Rail
⅞" × 6"
T&G
1 ¾" × 5 ½"
Nexus Mid-Rail
5" × 5"
Post
#HVPP-34
| Key | QTY | Item Key | Description |
|---|---|---|---|
| A | 2 | C55PRYA | 5" × 5" Pyramid Cap |
| B | 2 | F32G | 1 ½" × 5 ½" × 70" Gorilla Pocket Rail |
| C | 22 | F54G | ⅞" × 6" × 41 ½" Gorilla T&G |
| D | 4 | F83U | ⅞" × 37 ¾" Trim Channel |
| E | 2 | F10E | ⁷⁄₅" × 5" × 132" Co-Ex Utility Post |
| F | 2 | G3RFH121 | 1 ½" × 71" Steel Insert |
| G | 1 | G3RFM147 | 1 ¾" × 71" Steel Insert |
| H | 1 | F3PM | 1 ¾" × 5 ½" × 70" Nexus Mid-Rail |
Please refer to the appropriate guideline documents available on this app for proper installation.

6' × 6' Gorilla Privacy (68")
1 ½" × 5 ½"
Gorilla Pocket Rail
⁷⁄₆" × 11.3"
T&G
5" × 5"
Post
#HVPp-56
| Key | QTY | Item Key | Description |
|---|---|---|---|
| A | 2 | C55PRYA | 5" × 5" Pyramid Cap |
| B | 2 | F32G | 1 ½" × 5 ½" × 71 ½" Gorilla Pocket Rail |
| C | 6 | F61S | ⅞" × 11.3" × 62 ¼" Gorilla T&G |
| D | 2 | F83U | ⅞" × 58 ⅞" Trim Channel |
| E | 2 | F10E | 5" × 5" × 96" Co-Ex Utility Post |
| F | 1 | G3RFH121 | 1 ½" × 70" Steel Insert |
Please refer to the appropriate guideline documents available on this app for proper installation.

6' × 6' Gorilla Locking Privacy (68")
1 ½" × 5 ½"
Gorilla Pocket Rail
⁷⁄₆" × 11.3"
Locking T&G
5" × 5"
Post
#HVPp-57
| Key | QTY | Item Key | Description |
|---|---|---|---|
| A | 2 | C55PRYA | 5" × 5" Pyramid Cap |
| B | 2 | F32G | 1 ½" × 5 ½" × 71 ½" Gorilla Pocket Rail |
| C | 6 | F61L | ⅞" × 11.3" × 62 ¼" Gorilla Locking T&G |
| D | 2 | F83U | ⅞" × 58 ⅞" Trim Channel |
| E | 2 | F10E | 5" × 5" × 96" Co-Ex Utility Post |
| F | 1 | G3RFH121 | 1 ½" × 70" Steel Insert |
Please refer to the appropriate guideline documents available on this app for proper installation.