
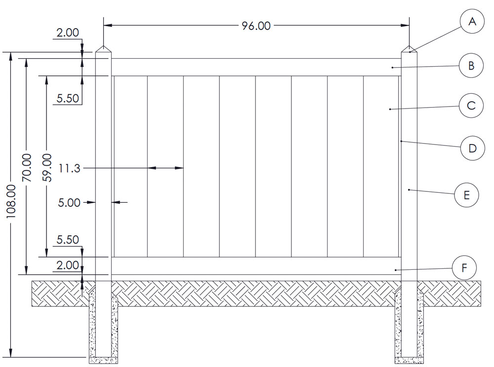
6' × 8' Gorilla Privacy (70")
1 ¾" × 5 ½"
Gorilla Pocket Rail
⅞" × 6"
T&G
5" × 5"
Post
#HVPP-01
| Key | QTY | Item Key | Description |
|---|---|---|---|
| A | 2 | C55PRYA | 5" × 5" Pyramid Cap |
| B | 2 | F37C | 1 ¾" × 5 ½" × 94" Gorilla Pocket Rail |
| C | 15 | F54G | ⅞" × 6" × 62" Gorilla T&G |
| D | 2 | F83U | ⅞" × 59" Trim Channel |
| E | 2 | F10E | 5" × 5" × 108" Co-Ex Utility Post |
| F | 1 | G3RFM147 | 1 ¾" × 94" Steel Insert |
Please refer to the appropriate guideline documents available on this app for proper installation.

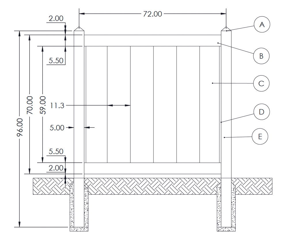
6' × 8' Gorilla Privacy
1 ¾" × 5 ½"
Gorilla Pocket Rail
⅞" × 11.3"
T&G
5" × 5"
Post
#HVPp-04
| Key | QTY | Item Key | Description |
|---|---|---|---|
| A | 2 | C55PRYA | 5" × 5" Pyramid Cap |
| B | 2 | F37C | 1 ¾" × 5 ½" × 94" Gorilla Pocket Rail |
| C | 8 | F61S | ⅞" × 11.3" × 62 ¼" Gorilla T&G |
| D | 2 | F83U | ⅞" × 59" Trim Channel |
| E | 2 | F10E | 5" × 5" × 108" Co-Ex Utility Post |
| F | 1 | G3RFM147 | 1 ¾" × 94" Steel Insert |
Please refer to the appropriate guideline documents available on this app for proper installation.

6' × 8' Privacy PANEL (70")
1 ¾" × 5 ½"
Gorilla Pocket Rail
⅞" × 11.3"
Gorilla T&G
5" × 5"
Post
#HVPp-10
| Key | QTY | Item Key | Description |
|---|---|---|---|
| A | 2 | C55PRYA | 5" × 5" Pyramid Cap |
| B | 2 | F37C | 1 ¾" × 5 ½" × 94" Gorilla Pocket Rail |
| C | 8 | F61S | ⅞" × 11.3" × 62 ¼" Gorilla T&G |
| D | 2 | F83U | ⅞" × 59" Trim Channel |
| E | 2 | F10E | 5" × 5" × 108" Co-Ex Utility Post |
| F | 1 | G3RFM147 | 1 ¾" × 93" Steel Insert |
Please refer to the appropriate guideline documents available on this app for proper installation.

6' × 6' gorilla Privacy (70")
1 ¾" × 5 ½"
Gorilla Pocket Rail
⅞" × 11.3"
T&G
5" × 5"
Post
#HVPp-20
| Key | QTY | Item Key | Description |
|---|---|---|---|
| A | 2 | C55PRYA | 5" × 5" Pyramid Cap |
| B | 2 | F37C | 1 ¾" × 5 ½" × 71 ½" Gorilla Pocket Rail |
| C | 6 | F61S | ⅞" × 11.3" × 62 ¼" Gorilla T&G |
| D | 2 | F83U | ⅞" × 59" Trim Channel |
| E | 2 | F10E | 5" × 5" × 96" Co-Ex Utility Post |
Please refer to the appropriate guideline documents available on this app for proper installation.

6' × 6' gorilla Privacy (68")
1 ¾" × 5 ½"
Gorilla Pocket Rail
⅞" × 11.3"
T&G
5" × 5"
Post
#HVPp-21
| Key | QTY | Item Key | Description |
|---|---|---|---|
| A | 2 | C55PRYA | 5" × 5" Pyramid Cap |
| B | 2 | F37C | 1 ¾" × 5 ½" × 71 ½" Gorilla Pocket Rail |
| C | 6 | F61S | ⅞" × 11.3" × 60 ¼" Gorilla T&G |
| D | 2 | F83U | ⅞" × 57" Trim Channel |
| E | 2 | F10E | 5" × 5" × 96" Co-Ex Utility Post |
Please refer to the appropriate guideline documents available on this app for proper installation.

6' × 8' gorilla Privacy (68")
1 ¾" × 5 ½"
Gorilla Pocket Rail
⅞" × 11.3"
T&G
5" × 5"
Post
#HVPp-22
| Key | QTY | Item Key | Description |
|---|---|---|---|
| A | 2 | C55PRYA | 5" × 5" Pyramid Cap |
| B | 2 | F37C | 1 ¾" × 5 ½" × 94" Gorilla Pocket Rail |
| C | 8 | F61S | ⅞" × 11.3" × 60 ¼" Gorilla T&G |
| D | 2 | F83U | ⅞" × 57" Trim Channel |
| E | 2 | F10E | 5" × 5" × 96" Co-Ex Utility Post |
Please refer to the appropriate guideline documents available on this app for proper installation.

6' × 6' Gorilla Privacy (70")
1 ¾" × 5 ½"
Gorilla Pocket Rail
⁷⁄₆" × 6"
T&G
5" × 5"
Post
#HVPp-27
| Key | QTY | Item Key | Description |
|---|---|---|---|
| A | 2 | C55PRYA | 5" × 5" Pyramid Cap |
| B | 2 | F37C | 1 ¾" × 5 ½" × 71 ½" Gorilla Pocket Rail |
| C | 15 | F54G | ⅞" × 6" × 62 ¼" Gorilla T&G |
| D | 2 | F83U | ⅞" × 59" Trim Channel |
| E | 2 | F10E | 5" × 5" × 96" Co-Ex Utility Post |
| F | 1 | G3RFM147 | 1 ¾" × 71" Steel Insert |
Please refer to the appropriate guideline documents available on this app for proper installation.

4' × 6' Gorilla Privacy (46")
1 ¾" × 5 ½"
Gorilla Pocket Rail
⁷⁄₆" × 6"
T&G
5" × 5"
Post
#HVPp-44
| Key | QTY | Item Key | Description |
|---|---|---|---|
| A | 2 | C55PRYA | 5" × 5" Pyramid Cap |
| B | 2 | F37C | 1 ¾" × 5 ½" × 70" Gorilla Pocket Rail |
| C | 11 | F54G | ⅞" × 6" × 38 ¼" Gorilla T&G |
| D | 2 | F83U | ⅞" × 59 ¼" Trim Channel |
| E | 2 | F10E | 5" × 5" × 70" Co-Ex Utility Post |
| F | 1 | G3RFM147 | 1 ¾" × 70" Steel Insert |
Please refer to the appropriate guideline documents available on this app for proper installation.

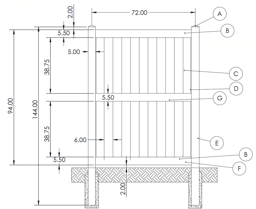
8' × 6' Gorilla Privacy w/mid-rail (94")
1 ¾" × 5 ½"
Gorilla Pocket Rail
⅞" × 6"
T&G
1 ¾" × 5 ½"
Nexus Mid-Rail
5" × 5"
Post
#HVPP-50
| Key | QTY | Item Key | Description |
|---|---|---|---|
| A | 2 | C55PRYA | 5" × 5" Pyramid Cap |
| B | 2 | F37C | 1 ¾" × 5 ½" × 70" Gorilla Pocket Rail |
| C | 22 | F54G | ⅞" × 6" × 41 ½" Gorilla T&G |
| D | 4 | F83U | ⅞" × ³⁸ ⁵⁄₈" Trim Channel |
| E | 2 | F10E | ⁷⁄₅" × 5" × 144" Co-Ex Utility Post |
| F | 3 | G3RFM147 | 1 ¾" × 70" Steel Insert |
| G | 1 | F3PM | 1 ¾" × 5 ½" × 70" Nexus Mid-Rail |
Please refer to the appropriate guideline documents available on this app for proper installation.